Neues Verfahren zur Engstellenaufnahme mit dem Trimble Gedo Scan System
Das Gleismesssystem Trimble Gedo CE wird in der Konfiguration Gedo Track bereits seit vielen Jahren erfolgreich bei Vermessungsarbeiten zum Einrichten und zur Kontrolle im Bereich der Festen Fahrbahn (FF) eingesetzt. Als Zwei-Wagen-System kommt es in der Variante Gedo Vorsys beim Vormessen [1] für Stopfarbeiten zum Einsatz. Im vergangenen Jahr neu vorgestellt wurde die Systemplattform Gedo CE 2.0. Auf Basis dieses Gleismesswagens bietet Trimble nun die Laser-Scanning Lösung Gedo Scan an. Hierbei wird der Gleismesswagen mit einem Laserscanner erweitert und ermöglicht die kinematische, gleisnahe Bestandsaufnahme (Abb. 1). Die Anwendung dieses Verfahrens wird nachfolgend am Beispiel von Engstellen im Bereich eines Bahnhofgleises gezeigt.

Einleitung
Der Transport von lademaßüberschreitenden Sendungen (Lü-Transporte) und der transeuropäische Personenverkehr mit überbreiten Fahrzeugen fremder Bahnen erfordern die exakte und einheitliche Aufmessung und Dokumentation aller Engstellen entlang der relevanten Strecken. Die Speicherung dieser Lichtraumdaten erfolgt bei der Deutschen Bahn (DB) AG in einem eigenen Datenbanksystem (Lira). Auf Basis dieser Datenbank erfolgen die Auskun gegenüber anderen Verkehrsunternehmen sowie die Planung der Lü-Transporte. Die technische Vorgehensweise zur Erfassung von Lichtraumengstellen ist in der DB-Richtlinie (Ril) 883.0026 festgelegt. Die erforderlichen Informationen zur Dokumentation werden in der Ril 458.0108 beschrieben. Um die Datenbank aktuell zu halten, ist es notwendig, nach allen Baumaßnahmen am Gleis eine Engstellendokumentation durchzuführen.Verfahren zur Lichtraumvermessung.

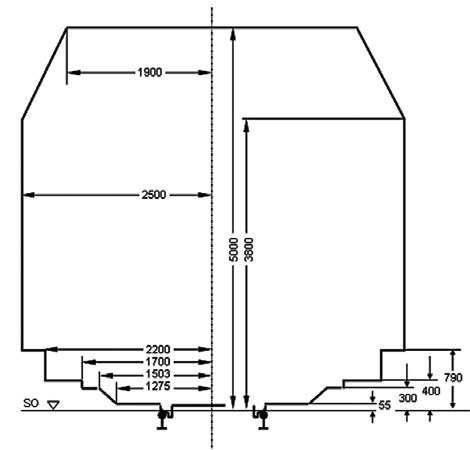
Bei der Lichtraumvermessung müssen alle festen Objekte und Gegenstände aufgemessen werden, die in den Raum für die Engstellendokumentation (Abb. 2) hineinragen. Zusätzlich sind die Überhöhung, die absolute Position des Objektes (Lotfußpunkt) sowie der Abstand zum Nachbargleis zu bestimmen. Diese Informationen werden als Engstellen dokumentiert und an die Lira-Datenbank übergeben. Es wird ein örtliches Koordinatensystem verwendet, das auf die Ist-Gleislage bezogen ist. Der Koordinatenursprung liegt auf der Gleisachse am Lotfußpunkt des aufgemessenen Objektes (Abb. 3). Die x-Achse repräsentiert die Kilometrierungsrichtung. Für lokale Koordinaten (in y- und z-Richtung) wird eine Genauigkeit von ± 15 mm gefordert. Für die Position entlang der Strecke (x-Richtung) genügen ± 0,5 m. Der Gleisabstand ist mit ± 15 mm und die Überhöhung mit ± 2 mm zu erfassen [2]. Zur Erfassung werden von der DB keine speziellen Messmittel oder -verfahren vorgeschrieben. Grundsätzlich sind alle Messmittel geeignet, bei denen die Messgenauigkeit, Datenkompatibilität und -qualität erfüllt ist und die eine fachtechnische Typenfreigabe nach Ril 883.0050 erhalten haben [3].

Aktuell kommen vorrangig der bahneigene Messzug Limez III und das photogrammetrische System Pelim zur statischen Aufnahme zum Einsatz. Der Lichtraum-Messzug Limez III ist mit Hochgeschwindigkeits-Laserscannern, Fächer-Scannern und Videokameras ausgestattet und kann bei Geschwindigkeiten von bis zu 100 km/h eingesetzt werden [4]. Die Verortung erfolgt über GPS (Global Positioning System) in Verbindung mit einem Inertialmesssystem und Odometer. Beim statischen Messverfahren Pelim wird ein, mit photogrammetrischen Zielmarken bestückter Messrahmen, eingesetzt, der am Lotfußpunkt der Engstelle auf dem Gleis positioniert und fotograert wird. Im Nachgang erfolgt die photogrammetrische Ausmessung der Engstelle im entzerrten und skalierten Bild.
Gleismesssystem Trimble Gedo CE
Das System Gedo Scan basiert auf dem modularen Gleismesssystem Trimble Gedo CE 2.0. Dieses besteht aus einem Gleismesswagen, der Sensoren für die Messung der Überhöhung, Spurweite und den zurückgelegten Weg enthält. Die Messung der Spurweite erfolgt mit einer Genauigkeit von < 0,3 mm, die Überhöhung wird mit < 0,5 mm im statischen Betrieb und ca. 2 mm im dynamischen Betrieb gemessen. Eine multifunktionale Adaption ermöglicht die Aufnahme verschiedener Sensoren und Prismen. Ausgerüstet mit einem Prisma, wird das System in Kombination mit einem Tachymeter vorrangig für die Gleisdokumentation bestehender Strecken (Gedo Rec) oder für Vermessungsarbeiten beim Bau der FF (Gedo Track) eingesetzt. Als Zwei- Wagen-Lösung hat sich das System (Gedo Vorsys) beim Vormessen für Stopfarbeiten [1] als Standard etabliert. Hierbei wird auf einem Wagen ein Prisma und auf dem zweiten Wagen ein Tachymeter aufgesetzt, der sowohl als „Lasersehne“ als auch zur Messung zum Festpunkt genutzt wird. Beim System Gedo Scan wird der Laserscanner Trimble TX5 in der Mitte des Wagens montiert. Die Stehachse des Laserscanners wird fixiert, so dass nur in einer Ebene gemessen wird. Eine dreidimensionale Punktwolke entsteht erst durch die Bewegung des Gleismesswagens. Die Ausrichtung des Trimble TX5 auf dem Gleismesswagen Gedo CE kann wahlweise senkrecht zur Gleisachse oder um 45° gedreht erfolgen. Der Trimble TX5 bietet eine Messgenauigkeit von ± 2 mm im Messbereich von bis zu 25 m. Es können Objekte bis zu einer Entfernung von 120 m mit einer Messgeschwindigkeit von bis zu 976 000 Punkten pro Sekunde erfasst werden.
Messverfahren
Die Scan-Messung erfolgt durch Schieben des Gleismesswagens mit Laserscanner über das Gleis. Der Wagen wird einseitig angepresst, womit ein fester mechanischer Bezug zwischen der Gleisachse und den gemessenen Objektpunkten entsteht. Gleichzeitig werden die Werte der Überhöhung und Spurweite sowie der zurückgelegte Weg erfasst. Auf Basis der Vorwärtsbewegung und des rotierenden Laserscanners entsteht ein Helix-Scan, bei dem der Punktabstand in Richtung der Gleisachse durch die Rotationsgeschwindigkeit des Laserscanners und der Schubgeschwindigkeit des Gleismesswagens bestimmt wird. Der Laserscanner misst im Standardbetrieb mit 50 Hz. Damit ergibt sich bei einer Bewegung von 0,5 m/s ein Punktabstand von 10 mm in Stationsrichtung und ca. 12 mm im Abstand von 5 m in vertikaler Richtung. Durch die Verdrehung des Scanners auf dem Wagen werden senkrecht zur Gleisachse ausgerichtete, schmale Objekte (z. B. Schilder) auch bei normaler Schubgeschwindigkeit zuverlässig erfasst und bei der Auswertung in der Punktwolke sehr gut erkannt.

Das Gleismesssystem Gedo Scan kann sowohl für rein relative, für pseudo-relative als auch für absolute Messungen eingesetzt werden. Hierzu werden die aus dem Laserscanner und dem Gleismesswagen Gedo CE 2.0 gewonnenen Messdaten zunächst zusammengeführt und vorprozessiert. Anschließend können die so erzeugten Punkte entlang einer Geraden oder auf die Soll-Geometrie übertragen werden. Soll ein absoluter Bezug hergestellt werden, ist zusätzlich eine geodätische Gleisaufnahme notwendig. Auf Basis dieser werden die vorprozessierten Punkte ins globale System transformiert. Der Bezug zwischen beiden Systemen wird über die Schiene hergestellt. Zusätzliche externe Ziele – Kugeln, Prismen, Zielmarken, o. ä. – werden nicht benötigt. Als Ergebnis erhält jeder einzelne Scan-Punkt eine Koordinate im globalen Koordinatensystem. Absolute Messungen bieten die Grundlage für weiterführende Anwendungen. So können mit derart gewonnenen Informationen nicht nur Prüfungen auf Basis der Ist-Gleislage, sondern auch Berechnungen auf Basis einer neu geplanten Trassierung durchgeführt werden. Das ndet besonders Anwendung im Bereich von Tunneln oder anderen durchgehend begrenzenden Objekten.
Entscheidend für die Lichtraumprolmessung ist die hohe relative Genauigkeit des Systems, die durch den Laserscanner und die feste mechanische Anpressung des Gleismesswagens gegeben ist. Zur Überprüfung dieser Genauigkeit in der Praxis wurde ein gleisnaher Testauau gewählt, bei dem drei Kugeln aufgestellt wurden (Abb. 4). Die
Kugeln dienen als eindeutig identizierbare und sehr präzise bestimmbare Ziele für das Scan-System. Gleichzeitig kann das Kugelzentrum durch den zwangszentrierten Austausch gegen Präzisionsprismen tachymetrisch koordiniert werden. Bei der Genauigkeitsuntersuchung (Tab. 1) sind die mit einem Präzisionstachymeter Trimble S8-1 gemessenen Gleisabstände mit den mittels Scan-System bestimmten Werten gegenübergestellt. Es bestätigt sich die sehr hohe Genauigkeit des Laserscanners. Durch die feste mechanische Zuordnung hat der Neigungssensor des Gleismesswagens keinen Einuss auf die relativen Abstände.
Für die hier betrachtete Lichtraumprolmessung bietet sich die pseudo-relative Messmethode an. Hierbei erfolgt die geometrische Zuordnung über die Geometrie aus der Soll-Trasse entsprechend den digitalen Trassendaten oder dem Gleisvermarkungsplan. Die Aufnahme der Engstelle erfolgt wahlweise abschnittsweise für jede Engstelle
einzeln oder als durchgehende Messung. Die abschnittsweise Messung bietet sich an, wenn die zu betrachtenden Engstellen weit auseinander liegen. Die durchgehende Messung ist im Bahnsteigbereich oder bei mehreren aufeinanderfolgenden Engstellen vorzuziehen, da dann erst bei der Auswertung die genaue Position der Engstelle definiert werden muss.

Durchführung eines Pilotprojektes
Bei einem Pilotprojekt im Bahnhof Leverkusen sollten nicht nur die Engstellen gemessen, sondern auch die Auswertung einer tachymetrischen Vermessung bzw. bekannten Abstandsmaßen gegenüber gestellt werden. Es wurden einzelne alte und neue Engstellen
– Signale, ein Gebäude, Masten – sowie als durchgehende Messung ein Bahnsteig, inkl. Bahnsteigdach, vermessen. Hierzu wurde das ca. 900 m lange, neu gebaute Gleis zuerst erkundet, die aufzunehmenden Engstellen nummeriert und die Lage dokumentiert. Parallel dazu erfolgte die Festlegung der Scan-Bereiche, 5 m vor und hinter der Engstelle. Um die interne Messung des Gleismesswagens verizieren zu können, waren die Stationen zusätzlich mittels eines Rollrads bezogen auf vorhandene Gleisvermarkungspunkte oder Gleisabsteckungspunkte einzumessen. Anschließend wurde das Messsystem ins Gleis eingesetzt und die Messungen innerhalb der festgelegten Bereiche durchgeführt. Den Abschluss bildete die tachymetrische Vermessung der Scan-Bereiche um einen zusätzlichen Vergleich mit den Rollradmaßen herzustellen. Zudem wurden die Bahnsteigkante und einige ausgewählte Punkte pro Engstelle gemessen. Alle Engstellen
wurden mit einer handelsüblichen Digitalkamera fotografiert.Als Vorteil erwies sich, dass nach Abschluss der jeweiligen Messung das Gerät jederzeit aus dem Gleis gehoben werden konnte, um z. B. Arbeitszüge oder Zwei-Wege-Bagger passieren zu lassen. Für die Durchführung sämtlicher Vermessungen war eine Person ausreichend.
Scan-Auswertung
Die im Feld aufgenommenen Scan-Daten werden im Büro weiter verarbeitet und analysiert. Zunächst werden bei einer vollautomatischen Vorprozessierung die Scanner-Daten mit den Messwerten des Gleismesswagens und der Geometrie zu einer 3D-Punktewolke zusammengeführt. Die Analyse der so entstandenen 3D-Punktwolke erfolgt mit der Gedo Scan Oce Soware. Bei einem Kollisionstest mit dem Raum für die Engstellendokumentation (Abb. 2) werden Engstellen sofort sichtbar (Abb. 5). Im Bahnsteigbereich bietet das zusätzlich den Vorteil, dass die engsten Stellen einfach erkannt und ausgewertet werden können. An diesen Engstellen werden alle Scan-Punkte vor und nach dem Lotfußpunkt zu einem Sammelprol zusammengefasst und automatisch vektorisiert. Die Vektorisierung kann alternativ manuell erfolgen, wenn eine generalisierte Darstellung gewünscht ist. Anschließend wird die so erstellte Linie zur Übernahme in das Lichtraum-Datenbank-System (Lira) beziehungsweise zur Weiterverarbeitung mit der WinLue Soware im *.lue-Format exportiert.

Beim Export werden die engstellenspezischen Zusatzinformationen abgefragt und mit exportiert. Zusätzlich wird ein orthogonales Hybridbild (Abb. 6) erzeugt, das die 3D-Punktwolke der Engstelle in perspektivischer Ansicht mit dem eingezeichneten Raum für die Engstellendokumentation beinhaltet. Zur qualitativen Visualisierung wird außerdem eine photographische Aufnahme der Engstelle mit eingezeichnetem Raum der Engstellendokumentation als reales Hybridbild (Abb. 7) gefordert.


Beim Pilotprojekt wurde die oben beschriebene Vorgehensweise umgesetzt und gleichzeitig die Ergebnisse überprüft. Die mit dem Messsystem und per Rollrad bestimmten Stationierungen ergaben gegenüber den tachymetrisch ermittelten Koordinaten eine maximale Abweichung von 10 cm. Auf eine Tachymetermessung kann somit verzichtet werden, da die einzuhaltenden Toleranzen in Stationierungsrichtung gemäß Ril 883.0026 bei ± 0,5 m liegen. Bei den alten und vom Aufraggeber übergebenen Engstellen sind die Abstandsmaße und Höhenunterschiede zwischen z. B. unveränderter Bahnsteigkante und Bahnsteigdach überprüftworden. Die maximalen Abweichungen lagen hier bei ± 5 mm. Die Abstände und Höhenunterschiede aus der tachymetrischen Messung der Bahnsteigkante und einzeln aufgenommenen Punkten wurden auf die Ist-Gleislage bezogen und mit den Ergebnissen der ausgewerteten Scan-Daten verglichen. Die Abweichungen lagen bei maximal ± 3 mm.
Zusammenfassung
Das Trimble Gedo Scan ist ein System mit einer sehr hohen relativen Genauigkeit, welches effektiv und damit wirtschaftlich für die Lichtraumvermessung eingesetzt werden
kann. Der Bezug zum Festpunktfeld und zum DB_REF kann über GNSS (Global Navigation Satellite System) oder Tachymeter realisiert werden. Diese Instrumente können hierzu getrennt oder in Kombination mit dem System eingesetzt werden. Zu den herausragenden Eigenschaften gehören die durchgängige digitale Datenverarbeitung und die damit verbundene Erhöhung des Automatisierungsgrades. Als Nebenprodukt ermöglichen die Scan-Daten auch die Bestimmung der Lage und Höhe des Fahrdrahtes über der Schiene. Die Komponenten des Gedo CE 2.0 sind auch einzeln als Messsystem für die gleisgebundene Bestandsaufnahme und der Scanner im normalen geodätischen 360°-Betrieb nutzbar. Das einfache Handling im Gleis und das geringe Gewicht runden das innovative Messsystem ab.
Autoren
Dipl.-Ing. Frank Herzbruch
Eurail-Ing. Ingenieurbüro Herzbruch GmbH, Schwelm
Dipl.-Ing. Andreas Sinning
Trimble Railway Industry – Sinning Vermessungsbedarf GmbH, Wiesentheid
Literatur
[1] Walke, P.: Digitales Vormessen für Stopfmaschinen mit automatisiertem Leitcomputer, EI – DER EISENBAHNINGENIEUR Heft 4/2009
[2] Ril 883.0026: Handbuch 88301 „Eisenbahnvermessung“ der DB Netz AG, aktuelle Fassung vom 01.01.2011
[3] Ril 883.0050: Handbuch 88301 „Eisenbahnvermessung“ der DB Netz AG, aktuelle Fassung vom 01.01.2011
[4] Baulig C.; Blug A.: Bahn frei!, Laser+Photonik Heft 3/200
